Изображение
  • Обо мне
  • Тарифы
  • Проекты
  • Мои статьи
  • Контакты
Анкета клиента
Анкета клиента

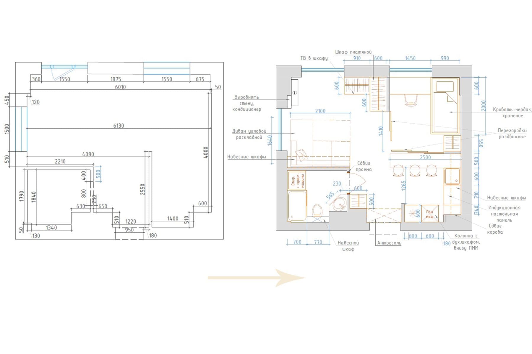
Проект №76 — Многофункциональная квартира-студия в Москве для старшеклассника-студента

Квартира для постоянного проживания одного молодого человека, к которому часто приезжают родители.
В этом проекте я использовала раздвижные перегородки для зонирования помещения, а также специальную мебель - чтобы разместить на ночь всех предполагаемых членов семьи.
Цветовая гамма выбрана спокойная, природная, сдержанная. Черные элементы добавляют графичности.
Освещение - магнитные треки. Они помогут выстроить на потолке нужную нам геометрию.

Изображение
Изображение
Изображение
Изображение
Изображение
Изображение
Изображение
Изображение
Изображение
Изображение
Изображение
Изображение
Изображение
Изображение
Изображение
Изображение
Изображение
Изображение
Изображение
Изображение
Изображение